Mulino della Compagnia: Sanierung einer alten Mühle – Masterthesis
Wie kann Architektur die Gesundheit der Erde und der Menschen erhalten?
Als Themen für meine Masterthesis habe ich die Baubiologie und die Altbausanierung gewählt, da ich diese Kombination als die nachhaltigste Art des Bauens ansehe (Anm. der Redaktion: Eine Masterthesis ist eine wissenschaftliche Abschlussarbeit, die Studierende im Masterstudium anfertigen).
Wesentliche Ziele der Baubiologie sind die Schaffung eines gesunden Raumklimas, die Einsparung von Ressourcen, die Förderung eines energieeffizienten Gebäudebetriebs, der Aufbau regionaler Versorgungsnetzwerke und die Gestaltung eines naturnahen Lebensumfeldes. In diesem Sinne fordert die Baubiologie eine ganzheitliche Planungsstrategie und Projektentwicklung unter Verwendung ökologischer, nachwachsender und wiederverwendbarer Materialien.

Aspekte der Baubiologie1 Aspekte der Baubiologie
Altbausanierung
Die Nachhaltigkeit von Gebäuden verbessert sich, wenn deren Nutzungsdauer durch Sanierung verlängert wird. Die Erhaltung bestehender Gebäudesubstanz minimiert den Materialverbrauch und das Müllaufkommen. Außerdem lassen sich durch die Wiederbelebung verlassener Orte kulturelle Denkmäler erhalten.
Das Bestandsgebäude
Die „Mulino della Compagnia“ war eine mit Wasser angetriebene Mühle im Chianti (Toskana), welche bis 1951 bewohnt war. Erste Aufzeichnungen, dass diese Bebauung als Wohnstandort genutzt wurde, finden sich um 1597. Erweitert und modernisiert wurde sie 1908. 2004 wurde sie teilsaniert. Das Gebäude befindet sich in einer Talsenke auf 275 m ü. NN, isoliert in einer Waldlichtung, kann aber aus dem benachbarten Dorf in fünf Fahrminuten erreicht werden. Das dazugehörige Land von 20 Hektar Fläche wurde früher landwirtschaftlich genutzt.
Die verlassene Mühle entspricht der traditionellen Bauweise des Chiantis. Das monolithische Natursteinmauerwerk aus Alberese (Kalkstein) und Galestro (Kalkstein-Schiefer), sowie die Fenster und Stürze aus Holz und aus Pietra Serena (hellgrauer Sandstein). Gebrannte Lehmziegel dienen als Dacheindeckung und Bodenbelag.

Südwestseite
Obergeschoss
Visualisierung/3D Rendering2 Südwestseite3 Obergeschoss4 Visualisierung/3D Rendering
Ein neues Nutzungskonzept in alten Gemäuern
In meiner Masterthesis geht es mir darum, neben den ökologischen Sanierungstechniken ein Konzept für die Wiederbelebung dieses Ortes zu entwickeln. Dafür habe ich die Potenziale des Ortes analysiert und ein Nutzungskonzept entwickelt, welches auf Basis folgender Entwurfsparameter neues Leben schaffen soll:
- Nachbarschaft und soziales Miteinander
- Wohnen und Arbeiten am selben Ort
- Rekultivierung durch diverse Landwirtschaft.
Das Planungs- und Ausführungskonzept sieht vor, zwei Wohneinheiten, Gemeinschaftsräume, einen Veranstaltungssaal für Kurse und Seminare, eine Werkstatt, sowie im Außenraum eine Versammlungsstätte im ehemaligen Wasser-Sammelbecken unterzubringen. So entsteht ein Ort, der sich für Gäste öffnet und seinen Bewohner*innen die räumlichen Voraussetzungen für diverse Betätigungen bereitstellt.

Obergeschoss fertig ausgebaut
Trennung von Rückzug/Wohnen im Obergeschoss und Teilen/Arbeiten im Untergeschoss
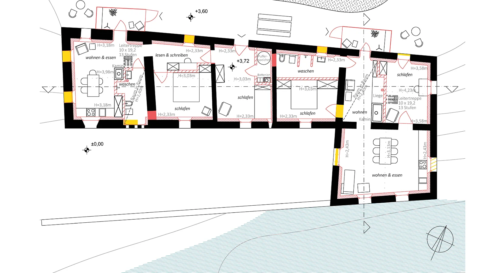
Grundriss Erdgeschoss (134 m²): „Arbeiten und Teilen“ – Wohnkonzept mit Nutzungsmischung
Grundriss Obergeschoss (Wohnung West = 70 m², Wohnung Ost = 82,5 m²
9 Längsschnitt): „Wohnen und Rückzug“ – minimierte Privatwohnfläche lässt Raum für Gemeinschaftsflächen
Längsschnitt
Querschnitt
Ansicht Südost
Ansicht Südwest5 Obergeschoss fertig ausgebaut6 Trennung von Rückzug/Wohnen im Obergeschoss und Teilen/Arbeiten im Untergeschoss7 Grundriss Erdgeschoss (134 m2): „Arbeiten und Teilen“ – Wohnkonzept mit Nutzungsmischung8 Grundriss Obergeschoss (Wohnung West = 70 m², Wohnung Ost = 82,5 m²): „Wohnen und Rückzug“ – minimierte Privatwohnfläche lässt Raum für Gemeinschaftsflächen9 Längsschnitt10 Querschnitt11 Ansicht Südost12 Ansicht Südwest
Kälte-, Hitze- und Feuchteschutz
Die Sanierungsarbeiten bestehen größtenteils aus Dämm- und Abdichtungsarbeiten. Hierfür wird Lehm als Grundbaustoff verwendet. Ungebrannter Lehm schafft ein herausragendes Raumklima durch seine diffusionsoffenen und hygroskopischen Eigenschaften sowie durch die Fähigkeit, Schadstoffe aus der Raumluft zu binden. So kann er Feuchtigkeit aus den Bestandsmauern aufnehmen und wieder abgeben und sorgt für eine ideale Raumluftfeuchte. Dämmungen werden mit Leichtlehm und Holzfasern ausgeführt. Abdichtungsmaßnahmen der erdberührten Wände und der Bodenplatte erfolgen mit Stampflehm. Die Verwendung von natürlichen Materialien sichert eine gesunde, schadstofffreie Raumluft und steigert damit die Gesundheit und das Wohlbefinden der Bewohnerschaft. Außerdem können diese Baumaterialien natürlich gewonnen und an ihrem Lebensende recycelt oder kompostiert werden, was die Gesundheit der Erde erhält.

Detail Abdichtung der Außenwände zum Erdreich
Detail Innendämmung der Außenwände13 Detail Abdichtung der Außenwände zum Erdreich14 Detail Innendämmung der Außenwände
Ihre Stimme zählt
Kommentarregeln:
Wir sind neugierig, was Sie zu sagen haben. Hier ist Raum für Ihre Meinung, Erfahrung, Stellungnahme oder ergänzende Informationen. Bitte beachten Sie bei Ihrem Kommentar folgende Regeln:
- Bitte keine Fragen: Auf dieser kostenlosen Informationsplattform können wir keine Fragen beantworten - bitte stellen Sie Ihre Fragen direkt an unsere Autor*innenAutor*innen.
- Bitte keine Werbung: Gerne können Sie auf Ihre Produkte/Dienstleistungen mit einem Werbebanner aufmerksam machen.
3 Kommentare
Einen Kommentar abschicken
Wie werde ich
Baubiolog*in IBN?
How to become a Building Biology Consultant IBN?
Nachhaltig weiterbilden
Know-how, Zusatzqualifikationen und neue berufliche Möglichkeiten für Baufachleute sowie alle, die sich für gesundes, nachhaltiges Bauen und Wohnen interessieren.
Unser Kompetenz-Netzwerk
Hier finden Sie unsere qualifizierten Baubiologischen Beratungsstellen und Kontakte im In- und Ausland nach Standort und Themen sortiert.
Über die Baubiologie
Die Baubiologie beschäftigt sich mit der Beziehung zwischen Menschen und ihrer gebauten Umwelt. Wie wirken sich Gebäude, Baustoffe und Architektur auf Mensch und Natur aus? Dabei werden ganzheitlich gesundheitliche, nachhaltige und gestalterische Aspekte betrachtet.
25 Leitlinien
Für einen schnellen, aufschlussreichen Überblick haben wir in 25 Leitlinien der Baubiologie die wichtigsten Parameter herausgearbeitet, sortiert und zusammengefasst. In 15 Sprachen, als PDF oder als Plakat erhältlich.


Sehr spannendes und zukunftsweisendes Projekt!
Respekt! Tolle Arbeit, mit viel Gespür für Raumqualitäten.
Eine schöne Masterarbeit, der man die Realisation wünscht.
Endlich mal eine Abdichtung mit Ton!
Weiter so.